当前位置:主页 > 案例作品 > 精品案例 >
案例风格
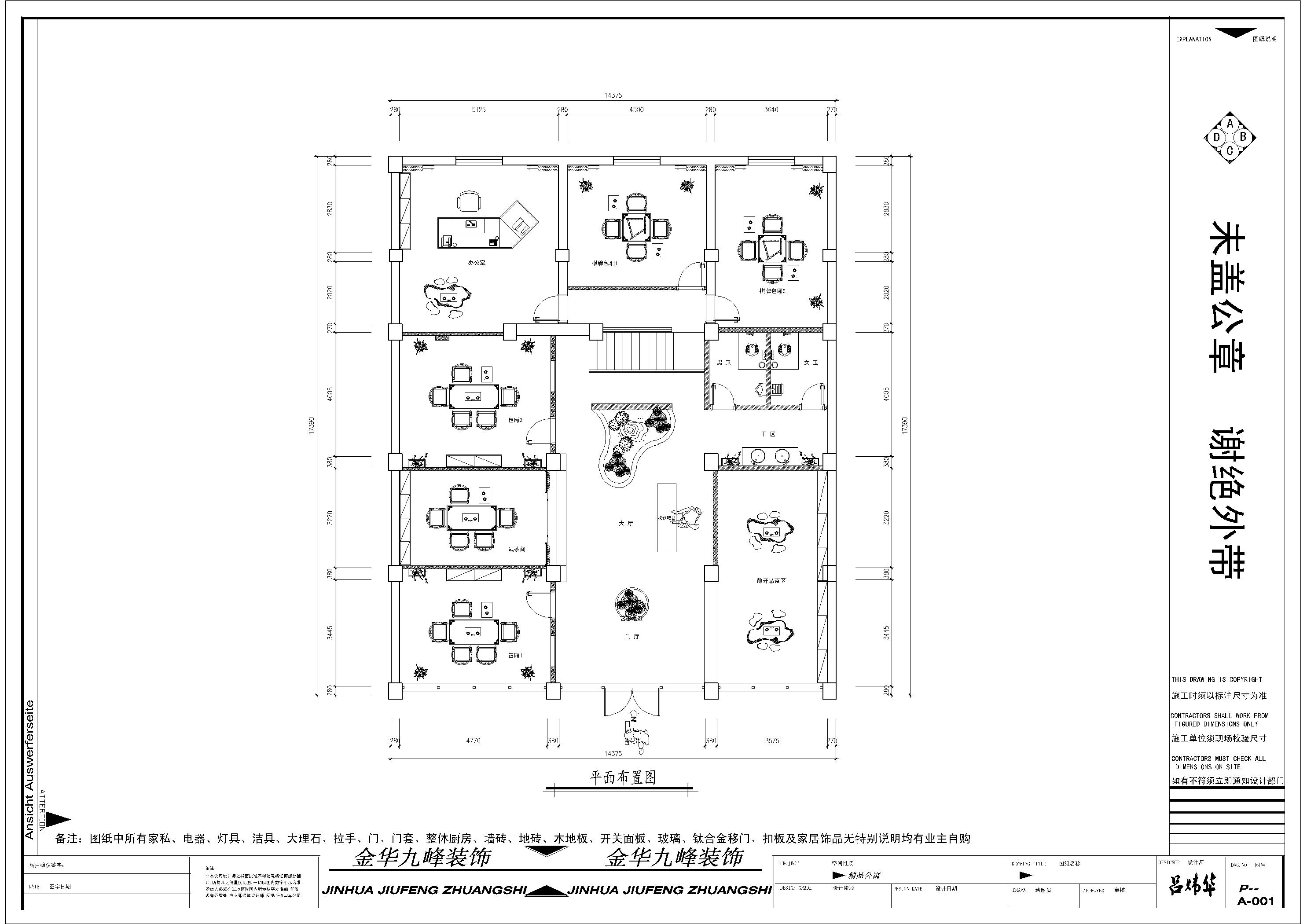
混搭
案例户型
普通住宅
案例面积
200
楼盘名称
主设计师
吕炜华
案例造价
13万
本案例设计师简介

姓名:吕炜华

职位:主任设计师

确认报名
相关案例
兰溪自建别墅 田园风 吴思源
凤凰苑
东阳白云锦园 日式北欧
多湖 170平 东南亚风格

30秒预测家装费用

房屋户型
楼盘信息
套内面积
装修风格
装修套系
您的称呼
手机号码
短信验证码
获取验证码
智能系统报价
人工精准报价
快速导航