当前位置:主页 > 案例作品 > 精品案例 >
案例风格
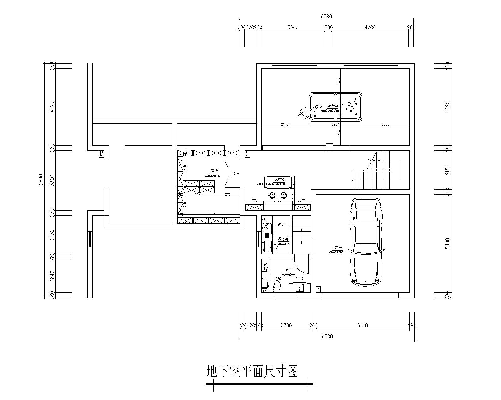
混搭
案例户型
排屋
案例面积
535
楼盘名称
春江花园
主设计师
admin
案例造价
30万
本案例设计师简介
确认报名
相关案例
凤凰苑
兰溪自建别墅 田园风 吴思源
东阳白云锦园 日式北欧
多湖 170平 东南亚风格

30秒预测家装费用

房屋户型
楼盘信息
套内面积
装修风格
装修套系
您的称呼
手机号码
短信验证码
获取验证码
智能系统报价
人工精准报价
快速导航